Court

Suite 416-S

Court

Suite 400-N

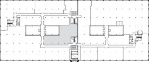
This interior, 4th floor space has a built-in breakroom, conference room, and several private offices. Contact us for a personal property tour.

Location on Floor

.

Contact a Leasing Agent